Search Photos Browse over 30,867 photos or filter for a more refined search experience. Note that our photos are of the Lincoln Home and the surrounding neighborhood, not of Lincoln.
Stuve House Second floor layout Lincoln Home NHS- Stuve House Stuve House, layout, plans Stuve House Second floor layout Lincoln Home NHS- Stuve House Stuve House, layout, plans
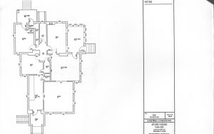
Stuve House First floor layout Lincoln Home NHS- Stuve House Stuve House, layout, plans Stuve House First floor layout Lincoln Home NHS- Stuve House Stuve House, layout, plans
Purpose: Document existing conditions before major removals begin; Stuve House Lincoln Home NHS- Stuve House HS-05-016, exp 24 Stuve House, removals Purpose: Document existing conditions before major removals begin; Stuve House Lincoln Home NHS- Stuve House HS-05-016, exp 24 Stuve House, removals
Purpose: Document existing conditions before major removals begin; Stuve House Lincoln Home NHS- Stuve House HS-05-016, exp 23 Stuve House, removals Purpose: Document existing conditions before major removals begin; Stuve House Lincoln Home NHS- Stuve House HS-05-016, exp 23 Stuve House, removals
Purpose: Document existing conditions before major removals begin; Stuve House Lincoln Home NHS- Stuve House HS-05-016, exp 22 Stuve House, removals Purpose: Document existing conditions before major removals begin; Stuve House Lincoln Home NHS- Stuve House HS-05-016, exp 22 Stuve House, removals
Purpose: Document existing conditions before major removals begin; Stuve House Lincoln Home NHS- Stuve House HS-05-016, exp 21 Stuve House, removals Purpose: Document existing conditions before major removals begin; Stuve House Lincoln Home NHS- Stuve House HS-05-016, exp 21 Stuve House, removals
Purpose: Document existing conditions before major removals begin; Stuve House Lincoln Home NHS- Stuve House HS-05-016, exp 20 Stuve House, removals Purpose: Document existing conditions before major removals begin; Stuve House Lincoln Home NHS- Stuve House HS-05-016, exp 20 Stuve House, removals
Purpose: Document existing conditions before major removals begin; Stuve House Lincoln Home NHS- Stuve House HS-05-016, exp 19 Stuve House, removals Purpose: Document existing conditions before major removals begin; Stuve House Lincoln Home NHS- Stuve House HS-05-016, exp 19 Stuve House, removals
Purpose: Document existing conditions before major removals begin; Stuve House Lincoln Home NHS- Stuve House HS-05-016, exp 18 Stuve House, removals Purpose: Document existing conditions before major removals begin; Stuve House Lincoln Home NHS- Stuve House HS-05-016, exp 18 Stuve House, removals
Purpose: Document existing conditions before major removals begin; Stuve House Lincoln Home NHS- Stuve House HS-05-016, exp 17 Stuve House, removals Purpose: Document existing conditions before major removals begin; Stuve House Lincoln Home NHS- Stuve House HS-05-016, exp 17 Stuve House, removals
Purpose: Document existing conditions before major removals begin; Stuve House Lincoln Home NHS- Stuve House HS-05-016, exp 16 Stuve House, removals Purpose: Document existing conditions before major removals begin; Stuve House Lincoln Home NHS- Stuve House HS-05-016, exp 16 Stuve House, removals
Purpose: Document existing conditions before major removals begin; Stuve House Lincoln Home NHS- Stuve House HS-05-016, exp 15 Stuve House, removals Purpose: Document existing conditions before major removals begin; Stuve House Lincoln Home NHS- Stuve House HS-05-016, exp 15 Stuve House, removals